torsdag 8. mai 2014

17. mai

Siden det snart er 17. mai vil jeg dele litt inspirasjons bilder med dere! <3

E N J O Y !



Prøveeksamen

Kjære blogglesere! nå er det lenge siden jeg postet noe her på bloggen. Jeg har hatt det litt travelt i det siste. har blant annet hatt prøveeksamen som jeg syntes gikk sånn passe greit. Nå lader jeg opp til eksamen som er i starten av juni. Vi har hatt en oppgave som gikk ut på å lage vår egen modell av en butikk som skulle være den nye gågata i Hamar. Det var veldig spennende siden HA kom og så på det her om dagen og vi skal kanskje stille ut modellen i det nye kulturhuset i Hamar :D :D
Vi har begynt med en ny oppgave nå hvor hele klassen skal samarbeide om å lage en russebuss. bilder fra det kommer etterhvert!! <3
Her er det noen bilder fra min prøveeksamen og noe inspirasjon:

Her er det noen inspirasjons bilder fra en befaring vi hadde på maxbo
i forbindelse med prøveeksamen.

Forside og collage fra prøveeksamen.

Plantegning fra prøveeksamen.

Snitt av barnerommet fra prøveeksamen.


fredag 4. april 2014

Oppgave 9 A, B. Beplanting av URA

I denne oppgaven skulle vi beplante terrassen og inne i huset til familien Jenzen i URA funkis huset.
Det var en A oppgave hvor det bare handlet om terrassen og hvilke møbler og planter som skulle være der. Og i oppgave B skulle vi beplante inne i URA huset.
Vi fikk ca 1 dag til sammen på hver av oppgavene så det var litt stress, men jeg syns jeg fikk gjort veldig mye på de dagene og ble fornøyd med resultatet :) :) :)

Her er noen bilder fra oppgaven:



Plantegning av beplantingen inne i URA


Plan av terrassen med møbler og planter.
Snitt A-A


Produkter av planter og krukker på terrassen.



Produkter, møbler og belysning til terrassen.

                       
                            
 Planter inne i URA huset.

                           


lørdag 1. februar 2014

Tur til Oslo

På onsdag (som også var bursdagen min) var vi i Oslo med klassen og besøk Kvadrat, Louis Paulsen og Silent Gliss :)








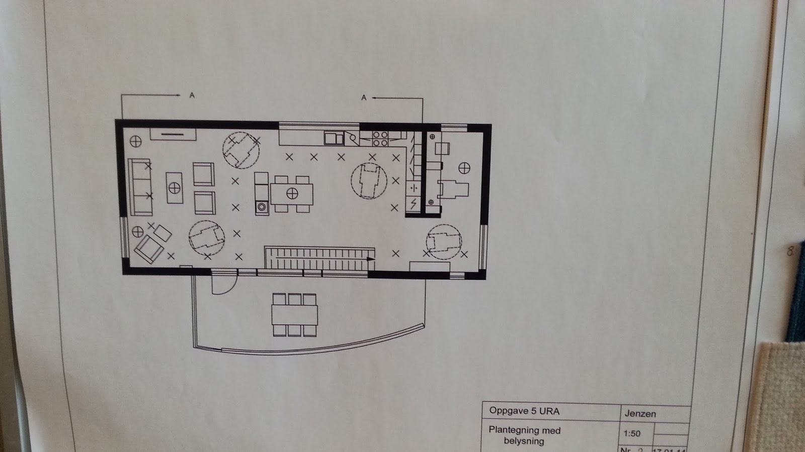
Oppgave 5. URA

Heisann! Da er jeg ferdig med enda en oppgave. Den gikk ut på å innrede hovedetasjen til familien Jenzen hvor moren satt i rullestol og hadde endel krav og behov som jeg måtte ta hensyn til. Under følger noen bilder av oppgaven:


 








fredag 3. januar 2014

Manilla bord

Hei og Godt Nytt År!
Da var vi igang igjen på skolen etter en fin ferie!!
Vi startet dagen med å tegne et Manilla-bord. Det var litt vanskelig, men jeg føler at jeg fikk det til ganske bra!
Her er noen bilder av det jeg tegnet:

 Dette er Manilla- bordet

Dette er tegningen som jeg tegna av Manilla-bordet

fredag 13. desember 2013

Julehilsen!!

Da er snart julen her!
Jeg vil bare ønske alle dere blogg lesere en kjempefin jul og et godt nytt år! Så snakkes vi på nyåret <3
Gleder meg til nye utfordringer og gleder i året som kommer!

G O D  J U L <3

<><><><><><><><><><><><><><><><><><><><><><><><><><><><><>